尊龙凯时- 尊龙凯时官方网站- APP下载招商时代乐章 (官方售楼处) 首页 招商时代乐章销售中心 环境户型价格地址楼盘详情配套电话交房时间配套电话交房时间

发布日期:2026-01-26 09:40:09 浏览次数:

  尊龙凯时,尊龙凯时官方网站,尊龙凯时APP下载选房时,首要考虑入户前的公共区域。这部分包括电梯、门厅和楼梯间等公摊面积,直接影响你的房子得房率。此外,这也是每天必经之地,与邻居共享的公共空间,是从公共到私密空间的过渡区域。设计不当易导致隐私尴尬或邻里矛盾。

  1、公摊少,得房率高。2、电梯门没有正对入户门。3、电梯厅采用大窗设计。4、邻居之间的入户门不对称,提高了隐私性。

  公共区域设计独具匠心:每两户共用一部电梯,每四户邻居共用一部封闭楼梯,并且采用连廊替代楼梯前室,以最大程度地节省公摊面积。这些公摊空间通常是为了紧急情况如火灾而设置的,平时很少使用,但仍会计入产证面积,占用购房者的实际使用面积。优秀的户型设计师懂得精确把控,精心设计,帮您节省不必要的公摊面积。

  126户型的公摊设计充分利用了小高层规范的要求,相较于高层规范,减少了强制的消防前室和消防楼梯数量。在此基础上,设计师精心雕琢,将公摊部分压缩到了最小,为您创造更多的私人空间。

  在进行购房辅导时,我们发现了一个有趣的现象:有不少购房人特别在意电梯门与入户门是否正对。虽然有人笑称这是东方住宅选房心理学,但无论是受到高人指点还是自身心理上的忌讳,对此留意的人并不少。因为他们明白,即便个人不在意,但若他人关注,也会对未来二手房的价值产生影响。因此,126户型的设计师也考虑到了这一点,采用了电梯门不正对入户门的设计,为购房者提供了一个贴心的设计细节。

  虽然电梯厅并没有规范要求一定要开窗,因此在当前的住宅设计中,许多楼盘的电梯厅都未设窗户。然而,电梯厅作为入户前的最后一道安全屏障,其封闭空间往往让人隐约感到担忧,尤其在人少且狭小的环境中。这种潜在的尾随心理常使人在等候电梯或进出时保持警惕。

  在这种情况下,电梯厅若开设大窗,首先解决了担忧,使人在等候或进出电梯时感到更加安全,同时还能享受到宁静中的景致,舒缓紧张的情绪。

  邻居之间的入户门不直对,这样的设计首先确保了居民的隐私,避免了尴尬的正面对视。

  此外,采用中心凹角为界的门框设计,最大限度地保障了各自的独立性。这样,即使贴上对联,也不用担心相互之间会产生压叠,减少了产生矛盾的可能性。相反的设计案例却是屡见不鲜。

  南北直通指的是边户南北两侧都可以开窗,没有遮挡,因此南北两侧的所有房间都能享受到充足的自然光线。这种设计不仅有利于提供明亮的居住环境,也有助于实现良好的自然通风,避免与周边邻居家的空气交叉流动,从而减少病毒传播的风险。南北直通被认为是板楼形式中最理想的设计之一,这一点是众所周知的。

  上图是招商时代乐章126㎡户型通风矢量图,图上模拟计算的是在春夏季东南风环境下,户内的通风情况。颜色代表风速,红色最优,蓝色基本静止;箭头代表流动方向。从中可以看到,南向客厅卧室和北侧卧室,主卫,厨房都有最大风速的红色箭头,表示在开窗情况下,这些房间都有最好的通风条件。其他房间也都是中等情况的通风条件。

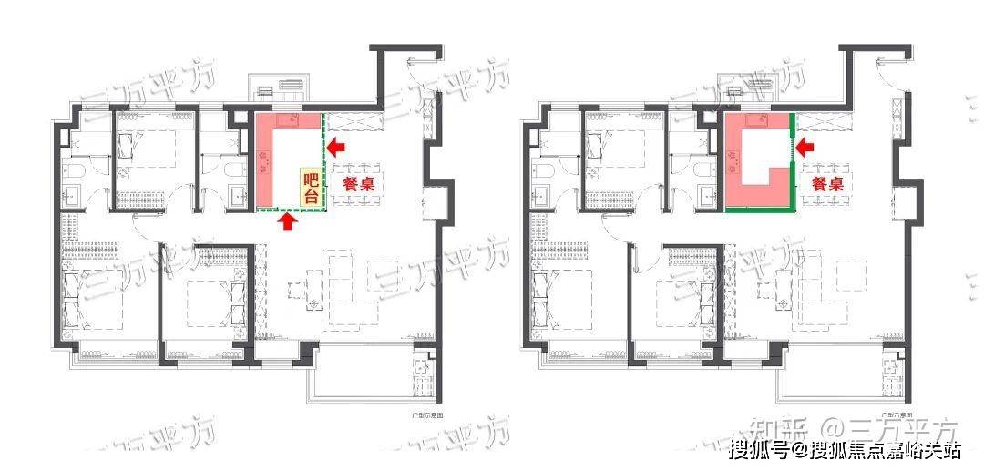
  126户型采用了动静分区的设计结构。入口处包括客厅、餐厅、厨房等公共区域,而所有的卧室或书房则位于内部的区域。中间区域设置了必备的公共卫生间。这种分区设计的优势在于完全将两个区域分隔开来,使它们各自独立,互不干扰。

  以三万平方的眼光来看,126户型最显著的特点之一就是其巨大的无柱空间。该户型创造了两个无柱空间,其中动区和静区都是无柱空间,主要由周边的剪力墙支撑。这种设计在当前市场上少有,约80%的楼盘无法实现。这样的设计给您带来了一个灵活组合的百变空间,极大地增加了居住的舒适度和可塑性。

  建筑学中存在一个概念被称为“全生命周期住宅”,它指的是一个房子可以随着家庭人口结构的变化而进行微小改造,从而满足不同阶段的需求,而不是频繁更换房屋。

  最佳的设计实例便是126户型,其中的正面玄关效果最为出色。首先,它提供了出色的隐私保护,使得开门时即便站在门外的人也无法窥探到客厅内的家人。其次,该设计为衣物、鞋帽等随身物品提供了便捷的收纳空间,并具备整理镜的功能。相比之下,侧面玄关则是失败的设计案例。门外的人可以轻易窥视到客厅的深处,导致隐私保护不足。

  把原本笔直的两户分户隔墙,通过精细化的设计变成深浅不一的S型,左右咬合,有深有浅,嵌入柜子和冰箱后刚好和墙拉平,同时结合入户玄关柜和背景墙,阳台收纳柜,形成完整美观的装饰面,将实用功能与空间美感融合。

  视觉上几乎察觉不到任何异形感,还增加了超乎想象的一整面墙的收纳空间,让你的家越住越大。

  KDLB动线设计采用了“四位一体”的组合,将客厅、餐厅、阳台和厨房合而为一。

  值得一提的是厨房,采用了两侧三轨道的移门,全部打开后,可以完全融入整个空间,使得人产生一种错觉,仿佛四种功能场景融合在一个大空间内,给人一种巴塞罗那德国馆流动空间的质感。

  同时增强了空间的交互性,让客餐厅的人能看到厨房正在忙碌的人,在厨房做饭的妻子也能看到在客厅玩耍的孩子。

  厅的感觉——更像180豪宅的厅。这个厅的空间超过50平方米,足够容纳4个台球桌,轻松自在。因此,这个厅给人的感觉似乎更像是180平方米以上的豪宅客厅。

  六个飘窗,甚至包括卫生间在内,都被设计成了飘窗。这样的设计之所以有意义,是因为飘窗,不占用建筑面积,是免费得到的附加使用空间,经济实惠又浪漫,数量越多越好。

  此外,该户型还拥有一个面积为7.4平方米的阳台,实际上可以计算一半的面积。

  开发商:招商蛇口项目板块:宝山新顾城房地联动价:约49400元/㎡容积率:D地块:2.3总套数:D地块可售套数约555套户型分布:建面约89㎡(3室2厅1卫)

  新顾城定位为上海北部产城相融合、配套高标准、宜居多元化的大型居住社区,以“一核一带四区两园”为框架,打造北上海宜居中心。

  招商时代乐章综合体,地处新顾城规划核心区域,毗邻顾村公园,以33万方巨量规划,打造北上海潮流聚集地。

  建筑立面-【人居美学天际】全画幅开窗视野,质感生活代表奢雅铝板立面,让建筑自然生长(立面部分材质为铝板装饰)

  上海招商时代乐章官方售楼处电线 VIPLINE✔✔✔【已认证】⭐⭐⭐⭐⭐

  楼盘项目全面介绍,本电话为开发商提供线上预约售楼电话,楼盘项目全面介绍(包含楼盘简介,均价,房价,现房,期房,别墅,叠墅,大平层,价格,楼盘地址,户型图,交通规划,备案价,备案名,项目配套,样板间,开盘时间,认筹时间,楼盘详情,售楼处电话,最新消息,最新详情,周边配套,一房一价,最新进展等详情咨询)楼盘详情丨价格丨更多优惠丨机不可失丨欢迎致电丨诚邀品鉴!售楼处位置丨特价房丨工抵房丨剩余房源丨户型图丨最新消息丨免责声明:将文章内容综合来源于网络、只作分享,版权归原作者所有!!如有侵权,请联系我们,我们第一时间处理如有问题欢迎来电咨询,专业一对一热情服务,让您用专业眼光去买房.如果您想了解更多楼盘详情,欢迎提前预约拨打

  2025年前三季度,房企融资仍然呈现收缩态势。其中第三季度融资1145亿,环比上升5%,但同比下降35%。

  可见,自2024年房企融资支持政策虽然边际改善,各地更是推广融资协调机制“白名单”,但非银融资规模仍未改变下滑趋势。

  2021年至今房地产行业已进入调整期的第四年,截至2025年三季度已有不少房企已完成了全部的债务重组。

  据CRIC统计,累计来看,当前共计11家房企实现了境内或境外部分的债务重组。

  在过去一年里,中央政府提出促进房地产市场止跌回稳的目标,企业主体能够正常运作是房地产止跌回稳的一个重要标志。

  CRIC统计数据显示,2025年前三季度,融资规模达3072亿,同比下降30%。其中第三季度融资1145亿,环比上升5%,但同比下降35%,处于历史低位。多数民营房企,尤其是出险房企,融资难的问题依然突出。

  从企业的债券类融资成本来看,2025年前三季度的境外债券融资成本为8.95%。而境内债券融资成本进一步下降至2.57%,较2024年全年继续下降了0.34个百分点。境内债券融资成本不断下降,一方面是由于自2024年货币环境开始宽松,LPR持续下调;另一方面,发债主体大多数为国企央企及优质民企,这类企业融资优势较为明显,如发债较多的招商蛇口、中交地产、美的置业等等。2025年前三季度,整体新增债券类融资成本为3%。

  从企业的性质分类来看,2025年前三季度国企、央企的发债量为1313亿元,同比下降了8%。而民营企业的发债量为134亿,同比下降13%;此外混合所有制企业发债量106亿,同比增长22%。需注意的是,2025年前三季度国企央企的发债量占比达85%。

  从成本上来看,国企、央企2025年前三季度的融资成本为2.58%,而民营企业则为5.40%,两者之间的差距再次扩大到2.82个百分点;此外混合所有制房企的融资成本下降至3.90%。在当前融资环境下,有充足抵押物及其他增信措施的优质房企更能够在政策扶持中受益,同时也能够获取更多的低息借款。

  从2021年恒大正式暴雷到2025年,房地产行业已进入调整期的第四年,截至2025年三季度也有不少房企已完成了全部的债务重组。从境内破产的法律程序来看,华晨地产、协信远创、金科股份、新华联已陆续完成了破产重整,而港股房企福晟国际也于2023年以股本重组及定增的代价实现了债务重组。

  在债务重组方面,旭辉集团已经实现了境内外债务的整体重组;龙光集团与融创集团的境内债均重组成功,境外债重组方案已得到大多数债权人支持,其中融创将于10月14日举行境外债务重组计划会议,而龙光已于9月10日与债权人小组订立修订协议。以此来看,当前完成破产重整或股本重组的房企共计5家,境内外整体债务实现重组或接近成功的房企共计3家。

  除此之外,世茂集团、佳兆业、中梁控股、金轮天地控股、中国奥园、时代中国控股、远洋集团以及禹洲集团共计8家企业的境外债重组成功,荣盛发展及绿地控股也分别对境外债展期。此外,花样年也于2023年完成了境内债的重组。累计来看,共计11家房企实现了境内或境外部分的债务重组。

  事实上,债务重组成功并不意味着企业恢复正常经营轨道。以近期刚完成境内外债务重组的旭辉为例,2025年8月,旭辉董事局主席林中对外表示,旭辉控股距离真正“站起来”,可能还需要三年时间,从低谷再出发,公司要进行二次创业,更明确提出将不会再重蹈“高杠杆、高负债、高周转”的覆辙,而要走一条“轻资产、低负债、高质量”的新路径。此前,林中曾提及,未来旭辉控股聚焦三大核心业务板块:一是稳定的收租业务,也就是旭辉持有的上海、北京等一二线城市优质商业资产组合;二是高度聚焦的开发业务,收缩深耕少数核心城市;三是房地产资管业务,学习美式开发商经验,向铁狮门、黑石方向发展。

  从债务到期来看,2024年房企债券到期规模达4829亿,而发行规模仅有2209亿,房企无法通过借新还旧覆盖到期债务。此外由于近年来不少房企选择将债务展期或置换,在此背景下2025年房企的债务压力较大,2025年债务到期规模甚至要高于2024年,达5342亿元;其中2025年第三季度是偿债高峰,到期规模约1600亿元。由于近年来,房企债券发行规模下滑明显,2026年房企整体的债务到期规模也明显下降,其中2026年一季度到期约1298亿,三季度到期1170亿。

  值得注意的是,近年来公募REITs在我国大力推行,有助于帮助房企将原本沉淀在自持物业中的资金释放出来,用于偿还债务、补充流动资金等。目前不少房企已经试水公募REITs或积极筹备发行。从中期业绩会及财务年报中的表态来看,华润置地、招商蛇口以及新城控股等均有明确表示未来要扩大REITs规模。

  当前房地产行业仍处于深度调整期,以往传统的“重资产”模式已难以适应当前的新形势,而公募REITs的出现能够帮助房企从开发商向运营商的角色转变,通过打造“投融管退”的全链条业务模式,帮助房企由“重”向“轻”的资产结构转变。

  除此之外,对于开发业务而言,出险房企的首要任务仍是与金融机构和债权人积极协商,适当延长债务期限,缓解当前的债务压力。未出险房企,需要对企业的土地储备进行结构性调整,尤其是加快滞重库存的去化,加快低量级城市项目去化。返回搜狐,查看更多